長年の空き旅館が、収益を生むナチュラルモダン宿へ。「Takasa house 高砂」
相続した古い物件や、使われないまま放置されている戸建て・集合住宅の一室を所有しているオーナー様にとって、毎年発生する固定資産税や都市計画税、そして老朽化に伴う補修・維持管理費は、心理的にも経済的にも大きな負担となります。
さらに、いざ活用を検討しようとしても、「修繕が必要」「設備が古い」「そもそも需要が見込めるのか分からない」といった不安が先に立ち、運用に踏み切れないまま時間だけが過ぎてしまうケースも少なくありません。
しかし、物件の状態や立地、地域特性を踏まえた適切なリノベーションと運用設計を組み合わせることで、こうした「コストや税負担」という悩みは、収益へと転換できる可能性を秘めています。
古い物件を「使わずに持ち続ける不動産」から、「選ばれる宿泊施設」「安定した収益を生む資産」へ——それこそが、当社が実現してきた古民家再生のかたちです。
物件の活用にお悩みのオーナー様は、ぜひ一度ご相談ください!
サービスのご相談はこちら
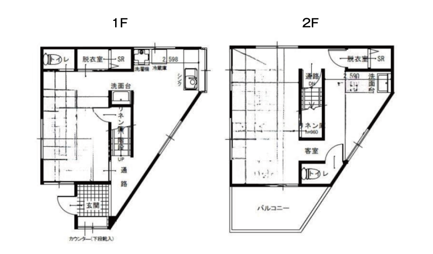
◆ 物件名:Takasa House 高砂
◆ 築年数:1963年
◆ 構造:木造2階建て
◆ 広さ:60㎡
◆ 所在地:葛飾区高砂
依頼の流れ・現地調査
この物件は、かつて旅館として営業されていましたが、長期間にわたり使用されない状態が続いていました。オーナー様は、税金や維持費を払い続ける一方で資産価値は下がり続け、売却も思うように進まない状況に直面していました。
ご相談時には、「手放すべきか、このまま維持すべきか判断がつかないまま、時間だけが経過してしまった」という率直なお悩みをお聞かせいただきました。

当社にて現地調査を行ったところ、建物には経年による劣化が見られるものの、周辺環境やアクセス条件を踏まえると、民泊施設としての需要は十分に見込める立地であることが確認できました。加えて、敷地条件や建物規模など、今後の活用を検討するうえでの“軸となる強み”も再認識することができました。
こうした調査結果を踏まえ、本プロジェクトでは、単なる部分修繕にとどまらず、用途転換×デザイン刷新をテーマに再生計画をスタート。物件の可能性を最大限に引き出すための方針を整理し、具体的なプランニングへと進めていきました。

エリア特性・コンセプト
本物件が所在する高砂(東京都区)は、落ち着いた住宅街が広がり暮らしやすさがありつつも、羽田・成田空港へのアクセスにも優れた利便性の高いエリアです。こうした立地は、ビジネス出張者、海外や遠方からの観光客など多様な宿泊需要にマッチします。
一方で、宿泊先を探す際には、今なお「まずはホテル」を選択肢に挙げる人が多いのも事実です。その中で民泊施設を選んでもらうためには、単に価格や立地の優位性を打ち出すだけでは不十分で、「ここに泊まりたい」と感じてもらえる明確な理由、つまり滞在価値の設計が欠かせません。
そこで今回のリノベーションでは、築古住宅を単にきれいに整えるのではなく、「泊まること自体に価値を感じてもらえる空間づくり」を重視しました。住宅ならではの落ち着きや温かみは残しつつ、快適性や使い勝手はホテルライクな水準まで引き上げ、初めて訪れる方でも安心して過ごせる宿泊施設を目指しています。

具体的には、以下の点を設計・改修の軸としました。
- 空間の質を高め、滞在そのものを楽しめる内装デザイン
- ホテルと同等の清潔感と安心感
- 長時間滞在にも対応できる生活動線と設備計画
これらをバランスよく整えることで、「ホテルと並列に検討してもらえる宿泊施設」でありながら、「ホテル以上に自分らしい時間を過ごせる場所」として選ばれる再生の方向性が明確になりました。

リノベーション後の空間デザイン
こちらの物件では、以前の間取りはそこまで変更せずに、すごしやすさ、快適さ、使い勝手を重視。各空間の役割にこだわりました。
・ダイニングキッチン
コンパクトな造りでありながら、陽の光を存分に取り込むダイニングキッチンは、使いやすさと居心地の良さを兼ね備えた空間に。

窓から差し込む自然光が室内を明るく照らし、限られた広さでも圧迫感を感じさせません。過度な装飾を抑えた設えが、初めて訪れるゲストにも安心感を与え、短期滞在から連泊まで快適に過ごせる環境を整えています。
・リビングスペース
あえてダイニングとはフロアを分けた2階のリビングスペースは、よりゆったりとした時間を過ごせる、清潔感と落ち着きを兼ね備えたくつろぎ空間です。

爽やかなブルーのアクセントが白と調和し、視覚的にも広がりを感じさせます。日中は自然光がやさしく差し込み、明るく軽やかな印象に。夜には照明と色味が重なり、静かに過ごせるリラックスした雰囲気へと表情を変えます。
主張しすぎないアートやオブジェが空間にリズムを生み、滞在する人の感性に心地よく寄り添います。
・多機能ユーティリティスペース
デッドスペースになりがちだった2階の一角には、水まわりと家電を集約したユーティリティゾーンを配置。

居室としては成立しにくかった空間に、滞在中の身支度や簡単な飲食準備、物干しといった生活機能を集約することで、民泊施設としての使い勝手を大きく向上させています。
ココミンカの活動
古くなった住宅や相続されたままの空き家、旧仕様のまま使われずに残っている物件を所有しながら、
- 維持費や税金の負担が重くのしかかっている
- 賃貸や売却が難しく、活用の糸口が見えない
- とはいえ、取り壊すのはもったいないと感じている
——このような悩みを抱えるオーナー様は、決して少なくありません。
弊社サービス「フリーノベーション」では、そうした物件を対象に、オーナー様の初期費用負担ゼロでリノベーションを実施。さらに、宿泊施設としての運営・管理まで含めた一貫したトータルサポートを行っています。
単に建物をきれいにするのではなく、「ただ管理コストを払い続けるだけの不動産」を「安定した収益を生む資産」へと再生すること——それが私たちの提供する価値です。
取り壊しを決断する前に、その物件にどんな可能性が眠っているのか、私たちと一緒に探ってみませんか。
物件の活用にお悩みのオーナー様は、ぜひ一度ご相談ください!
サービスのご相談はこちら



